52 Garrett Mansions£ 1,525,000

  • £1,525,000
For Sale
52 Garrett Mansions£ 1,525,000
  • £1,525,000

Description

Chain Free | High Spec New Build | Excellent Facilities | Zone 1

Garrett Mansions is located between the waterways of Little Venice, Paddington Basin and fashionable Marylebone. This area is filled with boutiques and charming restaurants, all moments away from the stunning canals that this area is renowned for. Transport links are excellent with the tube (Zone 1) and Crossrail all a short walk away.

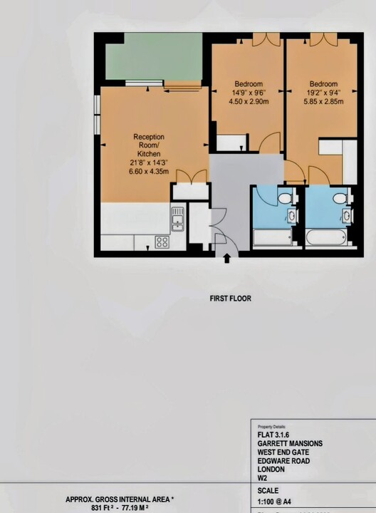
This property is located on the fifth floor and is a beautifully presented, interior designed one bedroom apartment located within a sought-after Berkeley Group development. The property comprises a modern and bright open-plan kitchen/reception room with space for entertaining and doors leading to a private balcony, two double bedrooms with built in storage and two bathrooms (one en-suite). The development boasts excellent facilities including a swimming pool, sauna, steam room, cinema room, dining room and conference rooms. There are two passenger lifts, an on-site building manager, 24 hr concierge, CCTV and a video entry system as well as landscaped gardens and parking.

150 year leasehold interest from 1st January 2020 with the option to extend the lease to 999 years in 2030 for a nominal amount.

Bedrooms: 2 Bathrooms: 2 Sq Foot: 843

Details

Updated on December 4, 2025 at 2:04 pm
  • Price: £1,525,000
  • Bedrooms: 2
  • Property Type: Apartment
  • Property Status: For Sale

Contact Information

Aaron
  • Aaron

Enquire About This Property

Compare listings

Compare
Aaron
  • Aaron